Tôi có 1 miếng đất 11x 23m. Chồng tôi tuổi Nhâm tý (1972), tôi tuổi Giáp Dần (1974). Tôi muốn nhờ chuyên gia tư vấn xây nhà 2 tầng có vườn trước và sau hợp phong thủy. Yêu cầu cụ thể như sau:
Ở tầng 1 gồm có PK, PN ông bà, PN bố mẹ, bếp và Phòng ăn rộng. Tầng 2: PN con gái có wc riêng, 2 PN của 2 con trai, các phòng khác như thư viện, phong sinh hoạt chung, phòng vi tính (để dễ dàng quản lý các con)...
Tất cả các phòng đều thông thoáng và lấy ánh sáng tốt.
Sân vườn phía trước có thể để xe hơi.
Vườn phía sau dùng để trồng rau sạch kết hợp khu giặt phơi quần áo.
Vì chồng tôi và tôi đều chiu trách nhiệm thờ cúng 2 bên nội ngoại, nên chưa biết phòng thờ nên để như thế nào?
Miếng đất có hướng tây nam.
(Lê Thúy Nga)
Tư Vấn:
Để có 1 ngôi biệt thự sang trọng, sử dụng tiện nghi với diện tích đất 11x23m, ngôi nhà nên bố trí về một phía của khu đất. Việc bố cục này sẽ tạo nên các khoảng sân trống, diện tích lớn, thuận tiện cho việc trồng cây, làm sân vườn. Cụ thể xin tư vấn về mặt bằng các tầng như sau:
+ Mặt bằng tầng 1:

Tầng 1 được bố trí không gian 2 phòng ngủ, wc chung, phòng khách, ăn, bếp liên thông tạo nên một không gian rộng, có thể sử dụng cho nhiều người khi nhà có việc, vị trí chuyển tiếp giữa không gian phòng khách, ăn được thay đổi cao độ tạo nên sự riêng biệt giữa 2 không gian.
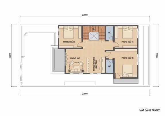
+ Mặt bằng tầng 2:

Tầng 2 được bố trí 3 phòng ngủ, wc, phần không gian còn lại được ưu tiên cho phòng sinh hoạt chung, thư viện, phòng vi tính. Không gian này là một trong những không gian quan trọng trong việc gắn kết, học tập, thư giãn cho các thành viên trong gia đình.
+ Một số gợi ý về nội thất
Nội thất phòng ngủ

Nội thất bếp

Tường
Chúc gia đình bạn sớm có ngôi biệt thự kiến trúc và phong thủy hài hòa!